750 кВА сыртқы алаңға орнатылған трансформатор-34,5/0,48 кВ|АҚШ 2024
Қуаты: 750 кВА
Кернеу: 34,5/0,48 кВ
Ерекшелігі: үстіңгі май термометрімен

Керемет шеберлік және тамаша сапа - үш-фазалы тақта-монтаждалған трансформатор тиімді және тұрақты қуат жүйелерін қолдайды!
01 Жалпы
1.1 Жоба туралы ақпарат
2024 жылы Қытайға 750 кВА үш фазалы тақтайшалы трансформатор жеткізілді. Трансформатордың номиналды қуаты ONAN салқындатуымен 750 кВА. Бастапқы кернеу 34,5ГрдY/19,92 кВ ±2*2,5% түрту диапазонымен (NLTC), қайталама кернеу 0,277/0,48 кВ, олар YNyn0 векторлық тобын құрады.
Орнатылған үш-фазалы алаң-трансформатор жабық конструкцияға ие және кабельді оңай қосуға мүмкіндік беретін жерге орнатылады. Трансформатордың корпусы су өткізбейтін және шаң өткізбейтін болғандықтан, оны әртүрлі ауа райы жағдайларына қолайлы етеді. Ол жүктеме тогын үзбестен техникалық қызмет көрсетуге және қосылуға мүмкіндік беретін мамандандырылған құрылғы болып табылатын жүктемені ажырату втулкасын қабылдайды. Бұл жүйе қуатталған күйде операторларға кабельдерді қауіпсіз қосуға және ажыратуға мүмкіндік береді, осылайша электр желісінің сенімділігі мен икемділігін арттырады. Үш{6}}фазалы тақта-орнатылған трансформаторлар қауіпсіз жұмысты қамтамасыз ету үшін шамадан тыс жүктемеден қорғау, қысқа тұйықталудан қорғау және температураны бақылау сияқты әртүрлі қауіпсіздік мүмкіндіктерімен жабдықталған. Үш фазалы трансформаторлар қалалық және ауылдық электр тарату жүйелерінде кеңінен қолданылады, олар электр энергиясына өсіп келе жатқан сұранысты қанағаттандыру үшін сенімді қуатпен қамтамасыз етеді.
1.2 Техникалық сипаттама
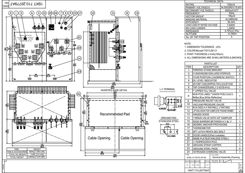
750 кВА трансформатордың техникалық сипаттамаларының түрі және деректер парағы
|
дейін жеткізілді
Қытай
|
|
Жыл
2024
|
|
Түр
Тақтаға орнатылған трансформатор
|
|
Стандартты
ANSI стандарты
|
|
Номиналды қуат
750 кВА
|
|
Жиілік
60 Гц
|
|
Кезең
3
|
|
Арна
Цикл
|
|
Алдыңғы
Өлген
|
|
Салқындату түрі
ОНАН
|
|
Бастапқы кернеу
34,5ГрдЖ/19,92 кВ
|
|
Екінші кернеу
0,277/0,48 кВ
|
|
Орам материалы
Алюминий
|
|
Бұрыштық орын ауыстыру
YNyn0
|
|
Кедергі
5.75%(±7.5%)
|
|
Changer түймесін түртіңіз
NLTC
|
|
Түрту ауқымы
±2*2.5%
|
|
Жүктеме жоғалмайды
1,3 кВт
|
|
Жүктеменің жоғалуы туралы
7,64 кВт
|
|
Аксессуарлар
Стандартты конфигурация
|
1.3 Сызбалар
750 кВА төсемді монтаждалған трансформатор диаграммасының сызбасы және өлшемі.
![]() |
![]() |
02 Өндіріс
2.1 Негізгі
Орнатылған үш фазалы тақта-трансформатордың өзегі үлкен магнит ағынының жолын қамтамасыз ету үшін біріктірілген бірнеше өзек аяқтарынан тұратын баған{2}}тәрізді дизайнды пайдаланады. Ядроның дизайны магнит ағынын барынша ұстап тұруды және кіріс пен шығыс арасындағы энергияны тиімді түрлендіруді қамтамасыз ететін жабық контур болып табылады. Ядроның дизайны әдетте жұмыс кезінде шуды және дірілді азайта отырып, үш фазалық токтардың теңгерімді таралуын қамтамасыз ету үшін симметриялы құрылымды пайдаланады. Негізгі материалдар мен дизайнды таңдау жұмыс кезінде жылуды таратуға және оңтайлы жұмыс температурасын сақтауға көмектесетін жақсы жылу өткізгіштік береді.

2.2 Орам

Орам үш фазалы қуат көзіне (A, B және C фазалары)-сәйкес келетін бірдей орамдардың үш жиынтығынан тұрады. Бұл дизайн әр фаза арасындағы тепе-теңдік пен функционалдылықты қамтамасыз етіп, тұрақты үш фазалық қуат шығысын қамтамасыз етуге көмектеседі. e орамдары әдетте өткізгіш материалдар ретінде алюминийден жасалған. Қысқа тұйықталу мен ағып кетуді болдырмау үшін орамдар оқшаулағыш материалдармен жабылған. Орамдардың жоғары-сапалы конструкциялары трансформатордың жалпы тиімділігін арттыра отырып, ток шығындары мен термиялық ысыраптарды айтарлықтай азайтады.
2.3 Резервуар
Резервуар ішкі май қысымы мен сыртқы ортаның әсеріне төтеп бере алатындай етіп, беріктігі мен беріктігін арттыру үшін{0}}тот баспайтын болаттан жасалған. Май цистернасы майдың ағып кетуін болдырмайтын, сонымен қатар ылғалдың немесе қоспалардың түсуін болдырмайтын, осылайша майдың тұрақтылығы мен тазалығын сақтайтын тығыздалған конструкцияға ие. Резервуардың ішіндегі трансформатор майы тамаша оқшаулағыш қасиеттерге ие, электрлік ақаулар мен ағып кетуді тиімді болдырмайды, трансформатордың қауіпсіз жұмысын қамтамасыз етеді. Резервуар май деңгейін нақты уақыт-бақылауды қамтамасыз ететін май деңгейін өлшейтін құралдармен жабдықталған, ол тиімді салқындатуды қамтамасыз ету үшін оның қалыпты диапазонда сақталуын қамтамасыз етеді. Мұнай резервуарының конструкциясы резервуардың зақымдалуына немесе жарылысқа әкелуі мүмкін шамадан тыс ішкі қысымның алдын алу үшін қысымды төмендететін клапандарды қамтиды.

2.4 Қорытынды жиналыс

Орамды орнату: Сыналған орамдарды май багының ішіне орнатыңыз, олардың сәйкес сымдарға дұрыс қосылғанына көз жеткізіңіз.
Негізгі орнату: Орамдармен тиімді қосылу үшін май ыдысының ішіндегі өзекті жинап, бекітіңіз.
Майды толтыру: Барлық ішкі құрамдас бөліктердің дұрыс орнатылғанына көз жеткізгеннен кейін орамдар мен өзек толығымен су астында қалуы үшін май ыдысын оқшаулағыш маймен толтырыңыз.
Тығыздау және сынау: Май ыдысын жабыңыз және майдың ағып кетпеуіне көз жеткізу үшін қысым мен ағу сынақтарын жүргізіңіз.
Электр сымдары: Жоғары{0}}кернеу және төмен кернеу жақтары үшін терминалдарды жалғап, электр сымдарын электр схемасына сәйкес орындаңыз.
03 Тестілеу
(1) Кәдімгі сынақ
a) Қосылымдар мен кран позицияларының қатынасы
б) Бұрыштық орын ауыстыру
c) 100% номиналды кернеуде-жүктемеде жоғалтулар жоқ
г) 100% номиналды кернеудегі қоздырғыш ток
e) Номиналды ток кезіндегі Lжүктеменің жоғалуы және кедергі
f) Қолданылатын кернеу
g) Индукцияланған кернеу
h) Трансформатор цистернасының ағуын анықтау сынағы-
i) Үздіксіздік сынағы
(2) Түр сынағы
а) Қарсылық
б) Температураның көтерілуі
в) Импульстік күш
d) Радио{0}}әсер ету кернеуі
f) Трансформатордың тұтастығы
g) Негізгі естілетін дыбыс
h) Теріс қысымға төзімділік


04 Сайт және қорытынды
Қорытындылай келе, біздің үш{0}}фазалы тақта-монтаждалған трансформаторымыз қуат тарату қажеттіліктері үшін ерекше өнімділік, сенімділік және қауіпсіздікті қамтамасыз ету үшін жасалған. Берікті құрылысымен, жетілдірілген оқшаулау қасиеттерімен және тиімді салқындату жүйесімен бұл трансформатор әртүрлі қоршаған орта жағдайларында тиімді жұмыс істеуге арналған. Қалалық инфрақұрылымды, коммерциялық нысандарды немесе өнеркәсіптік қолданбаларды жақсартуды қалайсыз ба, біздің трансформатор ең жоғары салалық стандарттарға сәйкес келетін ықшам және жан-жақты шешім ұсынады. Сапа мен инновацияға деген ұмтылысымызға сеніңіз және жұмысыңыз үшін тұрақты және тиімді қуат көзін қамтамасыз ету үшін біздің үш{5}}фазалы тақта-монтаждалған трансформаторымызды таңдаңыз.

Ыстық тегтер: сыртқы төсемге орнатылған трансформатор, өндіруші, жеткізуші, баға, құн
You Might Also Like
Сұрау жіберу









