500 кВА Трансформатор-13,2/0,48 кВ|АҚШ 2025
Қуаттылығы: 500кВА
Кернеу: 13200GrdY/7620-480V
Мүмкіндік: DOE 2016

DOE 2016 өнімділік стандарттарымен-қауіпсіз, таза және тиімді қуат беретін 500 кВА төсеніш орнатылған трансформатор
01 Жалпы
1.1 Жоба туралы ақпарат
Бұл жоба бастапқы кернеуі 13,2 кВ GrdY / 7620 В және қайталама кернеуі 480 В болатын 60 Гц жүйелеріне арналған, 500 кВА үш{1}}фазалы тақта-қондырылған тарату трансформаторын жеткізуді қамтиды. Трансформаторда ONAN (Oil Natural Air Natural) салқындату, сенімді түрде жұмыс істеу және алдыңғы жағынан қауіпсіз конфигурациялау мүмкіндігі бар. Ол YNd1 векторлық тобымен құрастырылған және кедергісі 5,75%.
DOE 2016 энергия тиімділігі стандарттарына сәйкес жасалған, 500 ква төсеніш орнатылған трансформатор номиналды қуаттылықта төмен қуат жоғалтуларымен -5,75 кВт жүктемесіз жоғалтумен және 0,65 кВт жүктеме жоғалтумен жоғары өнімділікті қамтамасыз етеді.
Бұл 500 кВА 13,2 кВ / 480 В үш{3}}фазалы-орнатылған трансформатор қалалық және қала маңындағы аймақтарда орташа{5}}кернеуден төмен{6}} кернеуді тарату үшін өте қолайлы. Типтік қолданбаларға мыналар жатады:
• Жарықтандыруды, желдетуді және тұрмыстық техниканы қуатпен қамтамасыз ететін тұрғын үйлер
• Кеңселер, супермаркеттер және сауда саябақтары сияқты коммерциялық кешендер
• Шағын және орта өлшемді жабдықтар мен машиналарды қуаттандыратын жеңіл өнеркәсіп нысандары
• Мектептер мен ауруханалар сияқты мекемелер сенімді және қауіпсіз қуатты қажет етеді
• Сенімділік пен қауіпсіздікті арттыру үшін желілік желілерде қолданылатын жерасты тарату жүйелері
Оның төсемі-орнатылған, ілмек-берілетін және өлі-алдыңғы дизайны оны кеңістік, қауіпсіздік және қол жетімділік маңызды болып табылатын-ашық немесе жер деңгейіндегі орнатуларға жарамды етеді.
1.2 Техникалық сипаттама
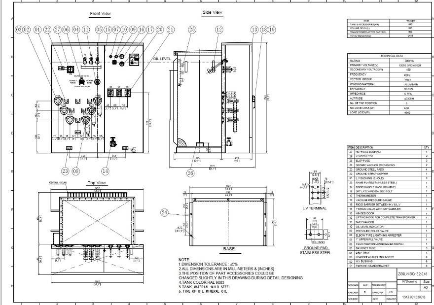
500кВА үш фазалы тақтаға орнатылған трансформатордың сипаттамасы және деректер парағы
|
дейін жеткізілді
Америка
|
|
Жыл
2025
|
|
Түр
Үш фазалы монтаждаушы трансформатор
|
|
Стандартты
IEEE Std C57.12.34-2022
|
|
Номиналды қуат
500 КВА
|
|
Жиілік
60 Гц
|
|
Арна
Цикл
|
|
Алдыңғы
Өлген
|
|
Кезең
Үш
|
|
Салқындату түрі
ОНАН
|
|
Бастапқы кернеу
13,2 кВ
|
|
Екінші кернеу
0,48 кВ
|
|
Векторлық топ
YNd1
|
|
Орам материалы
Алюминий
|
|
Кедергі
5.75%
|
|
Тиімділік және шығындар
DOE 2016
|
|
Changer түймесін түртіңіз
NLTC
|
|
Түрту ауқымы
±2*2.5%
|
|
Жүктеме жоғалмайды
5.75 W
|
|
Жүктеменің жоғалуы туралы
0.65 W
|
|
Аксессуарлар
Стандартты конфигурация
|
1.3 Сызбалар
500 ква алаңға орнатылған трансформатордың сипаттамасы және деректер парағы
![]() |
![]() |
02 Өндіріс
2.1 Негізгі
Бес{0}}аяқты өзек дизайны барлық үш фаза үшін теңдестірілген магнит ағынының жолдарын қамтамасыз етеді. Тіпті нөлдік -реттік токтар-, мысалы, бір{4}}жерге{5}}тұйықталулардан-жерге тұйықталулардан- немесе теңгерімсіз жүктеме жағдайында магнит ағыны екі сыртқы аяқ арқылы біркелкі ағып кетуі мүмкін. Бұл магнитті қабылдамауды азайтады, температураның көтерілуін төмендетеді және дірілді азайтады.
Бұл ядролық құрылым әсіресе YNd векторлық топ трансформаторлары үшін тиімді, өйткені ол жұлдыз{1}}байланысқан жоғары вольтты бейтарап жерге тұйықталған кезде нөлдік{0}}реттік ағынның анық жолын қамтамасыз етеді, осылайша электрлік тұрақтылық пен жүйенің сенімділігін арттырады.
2.2 Орам

Жоғары{0}}вольтты орам кернеудің біркелкі таралуын және тамаша оқшаулау өнімділігін қамтамасыз ету үшін бұрылыстардың көп саны бар жұлдызды (Y) қосылымын пайдаланады. Төмен кернеу орамасы үшбұрышты (D) конфигурациясында жалғанған, ол жоғары ток және аз айналымға арналған, әдетте механикалық беріктігі мен ток өткізу қабілетін арттыру үшін фольга орамасының құрылымын пайдаланады.
YNd1 векторлық тобы әдетте жоғары{1}} және төмен-вольтты оқшаулауды, гармоникалық әсерді азайтуды және жерге қосу мүмкіндіктерін қажет ететін Солтүстік Американың қуат жүйелерінде қолданылады.
2.3 Резервуар
Бұл 500 ква жастықшаға орнатылған трансформатор күшті механикалық тұтастық пен коррозияға төзімділікті ұсынатын болтты қақпағы бар тығыздалған жұмсақ болаттан жасалған май ыдысымен ерекшеленеді. Ол май өткізбейтін өнімділікті қамтамасыз ету үшін IEC 60076-1 стандартына сәйкес қысымның ағу сынағынан өтеді.
Гофрленген радиаторлар жинағы артқы жағында орнатылған, олар ағып кетпеу-жұмысын сақтай отырып, табиғи ауаның салқындатуын жақсарту үшін-цистернаға дәнекерленген тығыздағыш. Бұл ықшам дизайн тұрақты жылу өнімділігін және таза энергия қолданбаларында ұзақ{3}}мерзімді сенімділікті қолдайды.

2.4 Қорытынды жиналыс

Соңғы құрастыру кезінде 500 кВА пластка-монтаждалған трансформатордың қауіпсіз және сенімді жұмысын қамтамасыз ету үшін негізгі компоненттер орнатылады.
Жоғары{0}}кернеу жағы алты 200А бөлінетін оқшауланған төлкелерді және жерге қосуға арналған арнайы H0 бейтарап төлкесін қамтиды. Төмен{4}}вольтты жағында сенімді кабель қосылымдары үшін алты-тесік терминалдары бар екі шайыр-құйылған күрек-тұғыры бар.
Қорғаныс құрылғылары ақауларды оқшаулауға арналған үш штангты сақтандырғышты және үш -токты шектейтін сақтандырғышты (CLF) және асқын кернеу оқиғаларынан қорғау үшін үш негізгі кернеуді сөндіргішті қамтиды.
Қауіпсіз жерлендіруді қолдау үшін HV және LV жағында бір тесік қосылымдары бар жерге қосу төсемдері- берілген. Барлық құрамдас бөліктер қызметтік және өнімділік стандарттарын қанағаттандыру үшін дәл орнатылған.
03 Тестілеу

Кәдімгі сынақ және сынақ стандарты
1. Оқшаулау кедергісін өлшеу: IEEE C57.12.90-2021 10.11-тармақ
2. Қатынас сынақтары: IEEE C57.12.90-2021 7-тармақ; IEEE C57.12.00-2021 9.1-тармақ
3. Фазалық қатынас сынағы: IEEE C57.12.90-2021 6-тармақ
4. Қарсылық өлшемдері: IEEE C57.12.90-2021 5-тармақ
5. Жүктеменің жоғалуы және жүктеме тогы жоқ: IEEE C57.12.90-2021 8-тармақ, IEEE C57.12.00-2021 9.3-тармақ
6. Индукцияланған кернеуге төзімділік сынағы: IEEE C57.12.90-2021 10.7-тармақ
7. Жүктеменің жоғалуы, кедергі Кернеу және тиімділік: IEEE C57.12.90-2021 9-тармақ; IEEE C57.12.00-2021 9.2-тармақ
8. Қолданбалы кернеу сынағы: IEEE C57.12.90-2021 10.6-тармақ
9. Сұйықтық{1}}Батырылған трансформаторлар үшін қысыммен ағып кетуді сынау: IEC60076-1
Сынақ нәтижелері
|
Жоқ. |
Сынақ элементі |
Бірлік |
Қабылдау мәндері |
Өлшенетін мәндер |
Қорытынды |
|
1 |
Қарсылық өлшемдері |
% |
Максималды қарсылық теңгерімсіздік жылдамдығы |
2.29 |
Өту |
|
2 |
Қатынас сынақтары |
% |
Негізгі түртудегі кернеу қатынасының ауытқуы: 0,5%-дан аз немесе оған тең Қосылу белгісі: YNd1 |
-0.05% ~ -0.03% |
Өту |
|
3 |
Қатынастардың кезеңдік сынақтары- |
/ |
YNd1 |
YNd1 |
Өту |
|
4 |
Жүктеменің жоғалуы және қозу тогы-жоқ |
/ |
I0 :: өлшенген мәнді қамтамасыз ету |
0.27% |
Өту |
|
P0: өлшенген мәнді беріңіз (t:20 градус ) |
0,577 кВт |
||||
|
жүктемені жоғалтуға төзімділік +10% |
/ |
||||
|
5 |
Жүктеменің жоғалуы кедергі кернеуі мен тиімділігі |
/ |
т: 85 градус кедергіге төзімділік ±7,5% жалпы жүктеме жоғалуына төзімділік +6% |
/ |
Өту |
|
Z%: өлшенген мән |
5.67% |
||||
|
Pk: өлшенген мән |
4,032 кВт |
||||
|
Pt: өлшенген мән |
4,609 кВт |
||||
|
Тиімділігі 99,35% кем емес |
99.41% |
||||
|
6 |
Қолданбалы кернеу сынағы |
кВ |
ЖТ: 34кВ 60с ЖТ: 10кВ 60с |
Сынақ кернеуінің құлдырауы болмайды |
Өту |
|
7 |
Индукцияланған кернеуге төзімділік сынағы |
кВ |
Қолданылатын кернеу (КВ):2Ур |
Сынақ кернеуінің құлдырауы болмайды |
Өту |
|
Ұзақтығы: 48 |
|||||
|
Жиілік (HZ): 150 |
|||||
|
8 |
Ағып кету сынағы |
кПа |
Қолданылатын қысым: 20кПа |
Ағып кету жоқ және жоқ Зақым |
Өту |
|
Ұзақтығы: 12 сағ |
|||||
|
9 |
Оқшаулау кедергісін өлшеу |
GΩ |
HV-ЖЖ-Жерге: |
21.5 |
/ |
|
ЖЖ-ЖЖ жерге дейін: |
51.6 |
||||
|
HV&LV жерге дейін |
21.2 |
04 Орау және жөнелту
4.1 Қаптама

4.2 Жеткізу
Жүктеме алдында трансформатордың өлшемі мен салмағын өлшеп, биіктік, ені және салмақ шектеулеріне жол бермейтін бағытты жоспарлаңыз. Төмен төсек-немесе сыйымдылығы бар арнайы жүк көліктерін пайдаланыңыз.
Трансформатордың ауырлық орталығын көлікпен туралаңыз. Рұқсат болса, негізді жүк көлігіне бекіту үшін арналы болатты және дұрыс бекіту әдістерін пайдаланыңыз. Трансформаторды радиаторлар мен төлкелер сияқты нәзік құрамдастарды болдырмай, арнайы тасымалдау саңылаулары арқылы итарқалармен немесе шынжырлармен бекітіңіз. Ішкі бөліктерді құлыптап, барлық есіктерді жабыңыз.
Жылдамдықты 60 км/сағ аз немесе оған тең ұстаңыз және еңкейтіңіз Тасымалдау кезінде 15 градустан аз немесе оған тең. Кенеттен қозғалыстар мен күшті тербелістерден аулақ болыңыз. Қатаң ауа-райында байланыстыруды тексеру және тасымалдауды тоқтату үшін эскорттарды тағайындаңыз.
Көтеру кезінде арқанның бұрыштарын 60 градустан аз немесе оған тең ұстаңыз. Қажет болса, тарату жолақтарын пайдаланыңыз. Әрқашан тік көтеріңіз, ал үстіңгі құлақтары жоқ қондырғылар үшін астыңғы көтеру шыбықтарын пайдаланыңыз.
05 Сайт және қорытынды
Бұл 500 кВА, 13,2 кВ / 480 В үш фазалы -орнатылған тарату трансформаторы Солтүстік Американың қуат жүйелеріне бейімделген тамаша ортадан төмен кернеуді оқшаулау және жерге қосу мүмкіндіктерін ұсынатын YNd1 векторлық тобына ие. Оның бес{9}}аяқты ядросының дизайны нөлдік реттілік ағынын азайтады, жұмыс тұрақтылығын жақсартады және дірілді азайтады.
Тығыздалған жұмсақ болаттан жасалған май резервуарымен және артқы{0}}монтаждалған гофрленген радиаторлармен жабдықталған ол тиімді табиғи салқындату (ONAN) және ұзақ-мерзімді сенімділікті қамтамасыз етеді. Өлі{3}}алдыңғы дизайн қауіпсіз және ыңғайлы техникалық қызмет көрсетуді қамтамасыз етеді. Жоғары{5}}вольтты жағында алты 200А ажыратылатын оқшауланған төлке және арнайы H0 бейтарап төлке бар, ал төменгі-кернеу жағында сенімді кабель қосылымдары үшін шайыр-құйылған күрек-түрдегі втулкалар қолданылады. Сақтандырғыштар, токты шектейтін сақтандырғыштар (CLF){12}}және бастапқы кернеуді сөндіргіштер сияқты қорғаныс құрылғылары ақауларды сенімді оқшаулауды және асқын кернеуден қорғауды қамтамасыз етеді.
Әдеттегі қолданбаларға қауіпсіздік пен сенімділік маңызды болып табылатын тұрғын үйлер, сауда кешендері, жеңіл өнеркәсіптік нысандар, мектептер және ауруханалар сияқты қалалық және қала маңындағы орта- орташа кернеуді тарату жатады. Сондай-ақ, ол жеткізу сенімділігін арттыру үшін-жер асты цикл-жем тарату жүйелеріне жақсы сәйкес келеді.

Ыстық тегтер: 500 ква қондырылған трансформатор, өндіруші, жеткізуші, баға, құн
You Might Also Like
2500 кВА үш фазалы алаң-қондырылған трансформатор-13...
1500 кВА Трансформатор-34,5/0,48 кВ|АҚШ 2024
750 кВА алаңға орнатылған трансформатор Құны-13,8/0,...
3000 кВА тұрғын трансформатор қорабы-23,9/11,95*13,8...
1500 кВА Трансформатор Бағасы-23,9/0,416 Кв|Ямайка 2025
1000 кВА Өлі фронтальды трансформатор-24/0,48 кВ|АҚШ...
Сұрау жіберу











