2500 кВА Трансформатор-12,47/0,48 кВ|АҚШ 2025
Қуаттылығы: 2500 кВА
Кернеу: 12,47GrdY/7,2-0,48Y/0,277kV
Ерекшелігі: IFD және сейсмикалық якорь ережелерімен

Қауіпсіздік үшін әзірленген, өнімділік үшін жасалған – біздің алаң-қондырылған трансформаторларға сеніңіз!
01 Жалпы
1.1 Жобаның сипаттамасы
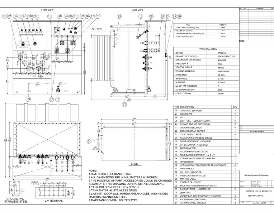
2500 кВА үш фазалы пластмассалы трансформатор Америкаға 2025 жылы жеткізілді. Трансформатордың номиналды қуаты ONAN салқындатуымен 2500 кВА. Бастапқы кернеу ±2*2,5% түрту диапазонымен (NLTC) 12,47GrdY/7,2 кВ, қайталама кернеу 0,48У/0,277 кВ, олар YNyn0 векторлық тобын құрады.
Біздің төсеніш{0}}Орнатылған трансформаторымыз коммуналдық және өнеркәсіптік қуатты таратуда жоғары өнімділік, сенімділік және қауіпсіздік үшін жасалған. Ішкі ақауларды анықтау (IFD) жүйесімен әзірленген ол ықтимал мәселелер туралы алдын ала ескертуді қамтамасыз етеді, бос уақытты барынша азайтады. 4-позициялық жүктемені ажырату қосқышы икемді жұмыс істеуге және қауіпсіз оқшаулауға мүмкіндік береді, ал қуатсыз ағынды ауыстырғыш (DETC) қызмет көрсетуді тоқтатпай дәл кернеуді реттеуге мүмкіндік береді.
Қиын жағдайларға төтеп беру үшін жасалған бұл трансформатор жер сілкінісіне төзімділігін арттыру үшін сейсмикалық якорьді қамтамасыз етеді. Критикалық бақылау нақты уақыттағы диагностикаға-жоғарғы май термометрімен, май деңгейін өлшегішпен және вакуумдық манометрмен жеңілдетілген. Қауіпсіздік қысымды төмендететін құрылғымен, штык сақтандырғыштармен және ELSP (Expulsion) сақтандырғыштарымен қосымша күшейтіліп, шамадан тыс жүктеме мен ақаулықтан қорғауды қамтамасыз етеді.
Жер асты тарату желілері үшін мінсіз, бұл берік және техникалық қызмет көрсетуге ыңғайлы трансформатор ықшам, қауіпсіз қоршауда тиімді, ұзақ{1}}қуат береді.
1.2 Техникалық сипаттама
2500 кВА пласткаға орнатылған трансформатордың техникалық сипаттамаларының түрі және деректер парағы
|
дейін жеткізілді
Америка
|
|
Жыл
2025
|
|
Түр
Тақтаға орнатылған трансформатор
|
|
Стандартты
IEEE Std C57.12.34-2022
|
|
Номиналды қуат
2500 кВА
|
|
Жиілік
60Гц
|
|
Кезең
3
|
|
Арна
Цикл
|
|
Алдыңғы
Өлген
|
|
Салқындату түрі
ОНАН
|
|
Бастапқы кернеу
12,47/7,2 кВ
|
|
Екінші кернеу
0,48У/0,277 кВ
|
|
Орам материалы
Алюминий
|
|
Бұрыштық орын ауыстыру
0,48У/0,277 кВ
|
|
Кедергі
5.75%
|
|
Changer түймесін түртіңіз
NLTC
|
|
Түрту ауқымы
±2*2.5%
|
|
Жүктеме жоғалмайды
2,4 кВт
|
|
Жүктемені жоғалту
15,79 кВт
|
|
Аксессуарлар
Стандартты конфигурация
|
1.3 Сызбалар
2500 кВА төсемді монтаждалған трансформатор диаграммасының сызбасы және өлшемі.
![]() |
![]() |
02 Өндіріс
2.1 Втулка тіректері
Төмен вольтты втулканың порттары- неғұрлым көп болса, оның сәйкес келетін терминал құлақшасы соғұрлым ұзарады. Бұл құлақшалар (бірнеше порттары бар) бірнеше ауыр кабельдерге жалғанған кезде немесе құлақ ұзартқыштары пайдаланылғанда, төмен вольтты төлке тіректері қажет болады.
Тым көп ауыр кабельдер тірелмейтін төлкелерге төмен қарай қысым жасайды, уақыт өте келе втулка төсемінің түбін (втулка мен резервуар қабырғасы арасында) қысады. Бұл тығыздағыштың үстіңгі жағынан трансформатор майының ағып кетуіне әкелуі мүмкін.
Втулка тіректері кабельдердің төмен қарай тартылуына қарсы тұрып, втулкаларға жоғары қарай кернеу қосады. Бұл тығыздағыштың қысылуын және ағып кетуін болдырмай, втулка жинағындағы кернеуді жеңілдетеді.

2.2 сақтандырғыш

Байонет сақтандырғыштары өнеркәсіптік{0}}стандартты сақтандырғыштар болып табылады, олар төсемді трансформаторларда және қуат тарату жүйелерінде кеңінен қолданылады. Артық ток немесе жоғары температурада балқитын жұқа балқитын элементі бар, олар іске қосылғанда ішкі доғаны іске қосады-бұл доға газды генерациялау үшін сақтандырғыш корпусының арнайы төсемімен әрекеттесіп, доғаны тез сөндіреді және ток ағынын тоқтатады.
Кең таралған түрлеріне ток сезу, қос датчик, қос элемент және жоғары{0}}амп сақтандырғыш сілтемелері жатады. Бұл сақтандырғыштар трансформаторларды қызып кету, шамадан тыс жүктеу, қайталама ақаулар және төмен-деңгейдегі қысқа тұйықталу сияқты жалпы қауіптерден қорғайды. Мәселе техниктермен шешілгеннен кейін, сақтандырғышты трансформаторды қайта қуаттандыру-үшін ауыстыруға болады.
2.3 Резервуар
Резервуар дәнекерленген тот баспайтын болаттан жасалған, ол коррозияға төзімділігі мен механикалық беріктігімен ерекшеленеді. Тиімділігі жоғары салқындату қалқандарымен жабдықталған резервуар салқындату бетінің ауданын ұлғайту арқылы жылуды тарату сыйымдылығын едәуір жақсартады, бұл тұрақты ұзақ мерзімді жұмысты қамтамасыз етеді. Оның толық жабылған конструкциясы оқшаулағыш майды қамтиды және қысымды төмендететін құрылғыларды қамтиды, сыртқы ластануды тиімді болдырмайды, сонымен қатар май температурасының өзгеруінен туындаған ішкі қысымның ауытқуын реттейді.

2.4 IFD

Орнатылған трансформатордағы IFD (изоляция ақауларын анықтау) жүйесі-оқшаулағыш майдағы еріген газдарды-ең алдымен сутекті-талдайтын біріктірілген онлайн бақылау құрылғысы. Ішінара разряд немесе қызып кету сияқты бастапқы оқшаулау ақаулары нәтижесінде пайда болған газдың ерте іздерін анықтай отырып, ол елеулі ақаулар орын алмас бұрын қосымша ескерту береді. Бұл алдын ала техникалық қызмет көрсетуге мүмкіндік береді, пайдалану қауіпсіздігін арттырады және трансформатордың сенімділігі мен қызмет ету мерзімін айтарлықтай жақсартады.
03 Тестілеу
Оқшаулауға төзімділік сынағы:- Барлық компоненттердің (мысалы, орамдар мен жер арасындағы және орамдар арасындағы оқшаулау) токтың ағып кетуін немесе қысқа тұйықталуларды болдырмау үшін жеткілікті оқшаулау мүмкіндігі бар екеніне көз жеткізу үшін трансформатордың оқшаулау кедергісін тексеріңіз.
- Оқшаулау кедергісі сынағы әдетте омметр арқылы жүргізіледі, өлшеу диапазоны әдетте бірнеше жүз мегаомнан бірнеше мың мегаомға дейін болады.


04 Қаптама
Жоғары коррозияға төзімділігі мен механикалық беріктігі үшін дәнекерленген тот баспайтын болаттан жасалған бұл резервуар әртүрлі сыртқы параметрлерде сенімді жұмыс істеу үшін жасалған. Оның жоғары -тиімді салқындатқыш қанаттары тиімді салқындату бетінің ауданын кеңейту арқылы жылуды басқаруды айтарлықтай арттырады, осылайша ұзақ уақыт бойы тұрақты жұмыс тұрақтылығын қамтамасыз етеді. Диэлектрлік маймен толтырылған және қысымды төмендету механизмдерімен жабдықталған герметикалық жабық конструкция термиялық кеңеюден туындаған ішкі қысымның ауытқуларын ескере отырып, сыртқы ластаушы заттардың енуіне тиімді жол бермейді.

05 Сайт және қорытынды
Тарату жүйелерінің сенімді ірге тасы ретінде біздің төсеніш{0}}қондырылған трансформаторларымыз инновациялық дизайнды қатаң шеберлікпен үйлестіріп, әртүрлі сыртқы қолданбалар үшін теңдесі жоқ тиімділік пен ұзақ мерзімділікті қамтамасыз етеді. Теңшелген шешімдерден бастап жаһандық жеткізуге дейін біз қауіпсіз және интеллектуалды қуат шешімдерін ұсынуға, икемді электр желісінің болашағына мүмкіндік беруге міндеттенеміз.

Ыстық тегтер: 2500 ква трансформатор, өндіруші, жеткізуші, бағасы, құны
You Might Also Like
Сұрау жіберу





