2250 кВА Трансформатор-12,47/0,6 кВ|АҚШ 2025
Қуаттылығы: 2250кВА
Кернеу: 12,47GrdY/7,2-0,6Y/0,347kV
Ерекшелігі: FR3 майымен

2250 кВА алаңға орнатылған трансформатор-күн фермаларына арналған, қауіпсіздік, тиімділік және жасыл энергия болашағы үшін жасалған
01 Жалпы
1.1 Жоба туралы ақпарат
АҚШ нарығында күн энергиясы жүйелерін кеңейтуді қолдау үшін біз 2250 кВА үш-фазалы тақта-компьютерлік{5}}масштабтағы фотоэлектрлік (PV) қолданбалар үшін арнайы әзірленген трансформаторды жеткіздік. Берік бес{7}}аяқты өзек құрылымымен және өлі{8}}алдыңғы, цикл-беру конфигурациясымен жасалған бұл құрылғы жаңартылатын энергия орталарында қауіпсіздікті, сенімділікті және жүйенің икемділігін қамтамасыз етеді.
Бұл2250 ква төсемі бар трансформатор12,47 GrdY/7,2 кВ бастапқы кернеумен және 0,6У/0,347 кВ қайталама кернеумен жұмыс істейді, бұл оны күн инверторларымен және төменгі ағынды тарату желілерімен өзара әрекеттесу үшін тамаша етеді. YNyn0 векторлық тобы тиімді жерге қосуға мүмкіндік береді және күн фермаларында төмен{6}}вольтты үш-фазалы жүктеме қосылымдарын жеңілдетеді. Алюминий орамалары арқылы құрылғы өнімділік пен үнемділік арасындағы теңгерімді қамтамасыз етеді.
Built with FR3 natural ester fluid, the transformer achieves a high level of environmental sustainability and fire safety, thanks to its high flash point (>300 градус) және биоыдырағыштық. KNAN (табиғи ауа{2}}салқындатылған) дизайны тамаша жылу өнімділігін қамтамасыз ете отырып, пайдалану күрделілігі мен техникалық қызмет көрсету қажеттіліктерін азайтады.
Кесте бойынша жеткізілетін бұл трансформатор декарбонизация және желіні жаңғыртудың кең ұлттық мақсаттарын қолдай отырып, клиенттің күн инфрақұрылымын кеңейтуге тікелей үлес қосады. Бұл жаңартылатын энергия секторының дамып келе жатқан қажеттіліктері үшін-өнімділігі жоғары, пайдалы-сыныптағы жабдықты жасау мүмкіндігімізді көрсетеді.
1.2 Техникалық сипаттама
2250 кВА төсеніштерге орнатылған трансформатордың сипаттамасы және деректер парағы
|
дейін жеткізілді
Америка
|
|
Жыл
2025
|
|
Түр
Үш фазалы монтаждаушы трансформатор
|
|
Стандартты
IEEE Std C57.12.34-2022
|
|
Номиналды қуат
2250 кВА
|
|
Жиілік
60 Гц
|
|
Арна
Цикл
|
|
Алдыңғы
Өлген
|
|
Кезең
Үш
|
|
Салқындату түрі
КНАН
|
|
Сұйық оқшаулағыш
FR3 майы
|
|
Бастапқы кернеу
12,47 кВ
|
|
Екінші кернеу
0,6 Кв
|
|
Векторлық топ
YNyn0
|
|
Орам материалы
Алюминий
|
|
Кедергі
5.75%
|
|
Тиімділік
99.52%
|
|
Changer түймесін түртіңіз
NLTC
|
|
Түрту ауқымы
±2*2.5%
|
|
Жүктеме жоғалмайды
2,4 кВт
|
|
Жүктемені жоғалту
15,79 кВт
|
|
Аксессуарлар
Стандартты конфигурация
|
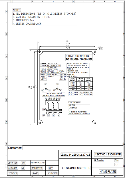
1.3 Сызбалар
2250 кВА төсеніштерге орнатылған трансформатордың өлшемдері мен салмағы туралы мәліметтер
![]() |
![]() |
02 Өндіріс
2.1 Негізгі
Бес{0}}аяқты өзек дизайны таратылған энергия жүйелерінде жиі кездесетін нөлдік реттілік ағыны мен теңгерімсіз жүктеме жағдайларын жақсы өңдеуді қамтамасыз етеді. Оның ілмекті-берілетін және өлі-алдыңғы конструкциясы АҚШ қауіпсіздік стандарттарына сәйкес келеді және күн өрістеріне, қосалқы станцияларға және жалпыға қолжетімді-аймақтарда ыңғайлы орнатуға мүмкіндік береді.

2.2 Орам

Бұл 2250 ква төсенішке орнатылған трансформатор кернеудің біркелкі таралуын және тамаша оқшаулау өнімділігін қамтамасыз ету үшін бұрылыстардың көп санын қамтамасыз ететін сымды орамалы дизайнмен-жоғары вольтты орамаға ие. Төмен кернеу орамасы жоғары токтарды тиімді өңдеу және жоғалтуларды азайту үшін фольга құрылымын пайдаланады. YNyn0 векторлық топ конфигурациясы жоғары және төмен кернеу жағында жерлендірілген бейтараптарды қолдайды, бұл фотоэлектрлік қолданбаларға арналған жүйенің қауіпсіздігі мен тұрақтылығының-негізгі талаптарын жақсартады. Сонымен қатар, қос төмен кернеу рейтингтері әртүрлі жүктеме конфигурацияларына икемді қосылымдарға мүмкіндік береді, жалпы жүйе сенімділігі мен күн энергиясы жобаларында бейімделу қабілетін арттырады.
2.3 Резервуар
2250 ква төсемге орнатылған трансформатор коррозияға төзімділікті арттыру үшін берік ақ ұнтақ қабатымен (RAL 9003) қапталған жұмсақ болаттан жасалған тығыздалған май ыдысын қамтиды. Болтталған қақпақ ішіндегі оқшаулағыш майды қорғайтын сенімді тығыздағышты қамтамасыз етеді.
Трансформатордың екі жағында және май резервуарының артқы жағында біріктірілген гофрленген радиаторлар бар, олар табиғи ауа конвекциясы үшін сыртқы бетінің ауданын ұлғайту арқылы пассивті салқындату элементтері ретінде қызмет етеді. Бұл радиаторлар термиялық циклде ағып кетпеу үшін-басты резервуар корпусына-қосылған және тығыздалған. Интерфейстегі дәлдікпен дәнекерлеу механикалық беріктік пен майдың-өтпейтін тұтастығын қамтамасыз етеді, сонымен қатар құрылымдық тұрақтылық пен салқындату өнімділігін бұзбай, термиялық кеңеюге мүмкіндік береді.

2.4 Қорытынды жиналыс

Соңғы құрастыру сатысында күн энергиясын қолдану үшін әзірленген 2250 кВА монтаждалған трансформатор -алты 200А бөлінетін оқшауланған HV төлкелерімен, арнайы бейтарап (H0) төлкелерімен және 12 тесігі бар терминалдары бар шайыр-құйылған күрек{5}}түрдегі ЖҚ төлкелерімен жабдықталған.
Трансформатордың қорғаныс жүйесі үш штангты сақтандырғыштарды, токты шектейтін сақтандырғыштарды (CLF)-және IEEE 386 стандарттарына сәйкес келетін металл оксиді варисторлары бар шынтақ типті найзағай сөндіргіштерді- қамтиды.
HV және LV жағында орнатылған жерге қосу төсемдері орнату қауіпсіздігін және пайдалану сенімділігін арттырады.
03 Тестілеу
Кәдімгі сынақ және сынақ стандарты
1. Қарсылық өлшемдері: IEEE C57.12.90-2021 5-тармаққа сәйкес
2. Қатынас сынақтары: IEEE C57.12.90-2021 7-тармаққа сәйкес
3. Фазалық байланыс сынағы: IEEE C57.12.90-2021 6-тармағына сәйкес
4. Жүктеменің жоғалуы және жүктеме тогы жоқ: IEEE C57.12.90-2021 8-тармаққа сәйкес
5. Жүктеменің жоғалуы, кедергі Кернеу және тиімділік: IEEE C57.12.90-2021 9-тармаққа сәйкес
6. Қолданбалы кернеу сынағы: IEEE C57.12.90-2021 10.6 тармағына сәйкес
7. Индукцияланған кернеуге төзімділік сынағы: IEEE C57.12.90-2021 10.5.1 тармағына сәйкес
8. Оқшаулау кедергісін өлшеу
9. Сұйықтыққа батырылған трансформаторлар үшін қысыммен ағып кетуді сынау: 20КПа температурадағы ағып кетуді сынау 12 сағат бойы ағып кетусіз жүргізілуі керек. Тұрақты деформация жоқ.
Сынақ нәтижелері
|
Жоқ. |
Сынақ элементі |
Бірлік |
Қабылдау мәндері |
Өлшенетін мәндер |
Қорытынды |
|
1 |
Қарсылық өлшемдері |
% |
Максималды қарсылық теңгерімсіздік жылдамдығы |
1.97 |
Өту |
|
2 |
Қатынас сынақтары |
% |
Негізгі түртудегі кернеу қатынасының ауытқуы: 0,5% -дан аз немесе оған тең Қосылу белгісі: YNyn0 |
-0.14% ~ 0.11% |
Өту |
|
3 |
фазалық -байланыс сынақтары |
/ |
YNyn0 |
YNyn0 |
Өту |
|
4 |
Жүктеменің жоғалуы және қозу тогы-жоқ |
/ |
I0:: өлшенген мәнді қамтамасыз ету |
0.22% |
Өту |
|
P0: өлшенген мәнді беріңіз (t:20 градус ) |
2,200 кВт |
||||
|
Жүктеменің жоғалуына төзімділік +10% |
/ |
||||
|
5 |
Жүктеменің жоғалуы кедергі кернеуі мен тиімділігі |
/ |
т: 85 градус Кедергіге төзімділік ±7,5% Жүктеменің жалпы жоғалуына төзімділік +6% |
/ |
Өту |
|
Z%: өлшенген мән |
5.88% |
||||
|
Pk: өлшенген мән |
14,325 кВт |
||||
|
Pt: өлшенген мән |
16,525 кВт |
||||
|
Тиімділігі 99,52% кем емес |
99.52% |
||||
|
6 |
Қолданбалы кернеу сынағы |
кВ |
В/: 34кВ 60с ЖТ/: 10кВ 60с |
Сынақ кернеуінің құлдырауы болмайды |
Өту |
|
7 |
Индукцияланған кернеуге төзімділік сынағы |
кВ |
Қолданылатын кернеу (КВ):2Ур |
Сынақ кернеуінің құлдырауы болмайды |
Өту |
|
Ұзақтығы: 48 |
|||||
|
Жиілік (HZ): 150 |
|||||
|
8 |
Ағып кету сынағы |
кПа |
Қолданылатын қысым: 20кПа |
Ағып кету жоқ және жоқ Зақым |
Өту |
|
Ұзақтығы: 12 сағ |
|||||
|
9 |
Оқшаулау кедергісін өлшеу |
GΩ |
HV-ЖЖ-Жерге: |
2.01 |
/ |
|
ЖЖ-ЖЖ жерге дейін: |
1.66 |
||||
|
HV&LV жерге дейін |
1.03 |




04 Орау және жөнелту


05 Сайт және қорытынды
Бұл 2250 кВА үш фазалы -под-орнатылған трансформатор АҚШ нарығындағы күн сәулесінен қуат алатын-көлемді жобалар үшін арнайы әзірленген. Ол күн фермалары мен жаңартылатын энергия жүйелеріне сенімді интеграцияны қамтамасыз ететін АҚШ қауіпсіздік стандарттарына сәйкес келетін мүмкіндіктері бар тұрақты және қауіпсіз қуатты таратуды қолдайды.
Жетілдірілген оқшаулаумен және салқындатумен жабдықталған ол таза энергияны қолдану үшін тамаша тиімді, экологиялық таза өнімділікті қамтамасыз етеді. Мықты қорғаныс құрамдастары қатал сыртқы ортада қауіпсіз жұмысты қамтамасыз етеді.
Біздің трансформаторлар АҚШ-тың жаңартылатын энергия секторының өсіп келе жатқан қажеттіліктерін қанағаттандыру үшін жасалған. Күн энергиясы жобаларын қуаттандыруға арналған арнайы шешімдер үшін бізге хабарласыңыз.

Ыстық тегтер: 2250 ква төсемі бар трансформатор, өндіруші, жеткізуші, баға, құн
You Might Also Like
Сұрау жіберу












